Skip to main content

Oregon State Flag An official website of the State of Oregon »

Project on hold | Kam Wah Chung State Heritage Site



Kam Wah Chung circa 1909

Kam Wah Chung circa 1909.

About Kam Wah Chung State Heritage Site

Originally built circa 1866 as a trading post, the building housed the Kam Wah Chung Company as early as 1878. The business served both the Chinese and American populations in John Day, and includes a meeting room, general store, medical diagnosis room, herb room, two bedrooms, and a kitchen/bunk room for Chinese migrant workers. This building also served as a religious and community center for the area's Chinese population.

The property was designated a National Historic Landmark in 2005. We continue learn more about John Day Chinatown via continuous research on artifacts, documents, and additional archaeological sites. The original building is open seasonally as a museum to visitors. Guests can learn about Chinese immigrants and their contributions throughout the Pacific Northwest in an interpretive center located two blocks from the museum.

Project

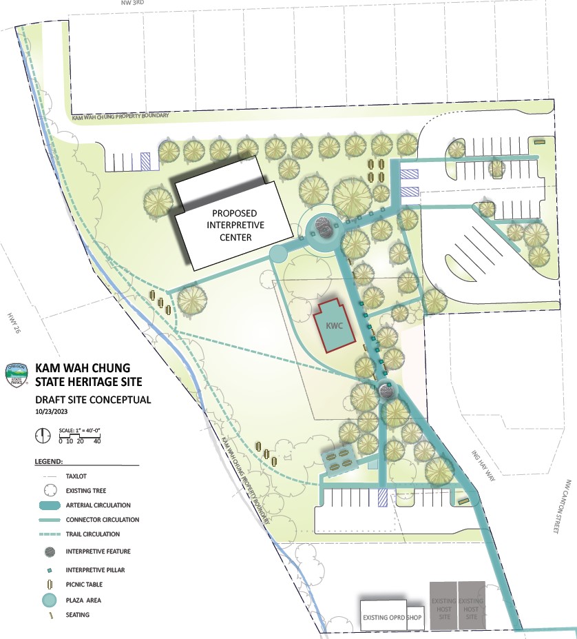
Interpretive Center and Collections Building

The project includes building a new, larger facility for the interpretive center and collections near the museum, owned by Oregon State Parks. With a new facility, we can better interpret the historic museum and provide environmentally controlled space to protect and preserve the historic collection. 

Project on hold

This GO Bond project has been put on hold until additional funding becomes available. Oregon State Parks is focusing on projects that will extend the life of existing facilities rather than adding new facilities due to budget constraints. OPRD will allocate the remaining GO Bonds to its maintenance backlog.

Why do we need the project? 

  • Kam Wah Chung is an international destination. The new facility will accommodate larger groups in the interpretive area and create a better visitor experience for sharing the museum story and early Chinese history in the John Day area. 
  • The current interpretive center and collections building are located two blocks from the historic museum and consists of two leased buildings.
  • Without the project, we would need to relocate the interpretive center and the collections to other leased buildings.

What is the project?

The new 10,000 square foot building will be constructed to the north of the historic building on property acquired recently from the City of John Day. It will be a high-efficient, climate-controlled building with solar panels.

The new building is anticipated to include:
  • Expanded interpretive areas 
  • Classroom which may double as a community meeting space
  • Restrooms
  • Collection processing and archive storage
  • Office space for staff
The expanded site will continue to serve as a community park for both visitors and locals.

Planned site improvements include:
  • Additional walking paths to connect the park.
  • Improved parking

Visitor impact

There is no impact on visitors while the project is on hold.

Milestones Reached 

  • 2022: Acquired adjacent Gleason Pool property from City of John Day.
  • 2023: Architecture/Engineering contract awarded to Cole Architecture.
  • 2024: Site plan submitted to the city

Next steps 

The following steps will resume once the project is no longer on hold.

  • Cole Architects will begin schematic design in January 2024.
  • The project team looks forward to seeking input from community partners.

News

Governor Kotek looks at plans

Deputy Director of Field Services Matt Rippee (left) shows plans to Governor Tina Kotek (center) and First Lady Aimee Kotek Wilson.

Oregon Parks and Recreation Department (OPRD) staff welcomed Governor Tina Kotek and first Lady Aimee Kotek Wilson to Kam Wah Chung State Heritage Site, July 20, 2023. Both were greeted by Deputy Director of Field Services Matt Rippee, Park Ranger and Museum Curator Don Merritt and Resource Program Manager Bridget Tinsley, as well as Grant County Chamber of Commerce President-elect Taci Philbrook.

OPRD staff shared a planning and development update about the future Interpretation Center. The center will be located on property acquired via a valued partnership with the City of John Day and Grant County. Southern Oregon University, the Oregon College of Oriental Medicine, Oregon Historical Society and the Oregon Diaspora Project and others will collaborate with OPRD on the design and development work. All partners are committed to protecting the tangible and intrinsic value of the heritage site during the center's creation and strengthening relationships with all stakeholders.

They scheduled their stop during a tour of Grant and Harney counties. We appreciate the Governor and First Lady including the park in their trip, supporting OPRD, and recognizing this important project.

Last updated Nov. 2025. Additional updates as information becomes available.

General Obligation Bonds Overview

The 2021 Oregon Legislature passed SB 5506 that approved general obligation bonds to revitalize parks and campgrounds. The Oregon State Parks and Recreation Commission approved a preliminary list of projects in November 2021. This list was revised in November 2025.

The project at Kam Wah Chung Heritage Site was one of the projects approved to receive funds from bond sales.

Questions? Send us an email.

Resources

Kam Wah Chung State Heritage Site visitor page

Oregon State Parks and Recreation Commission approves initial park facility improvement project list to be funded by general obligation bonds
(November 2021 news release)